|
Á¦¸ñ
|
¼úÁýÀ» ±¸³»½Ä´çÀ¸·Î
|
|
ÀÛ¼ºÀÚ
|
foodonhq
|
|
ÀÛ¼ºÀÏÀÚ
|
2025-05-20
|
|
°£·«¼³¸í
|
»ç¿Á ±Ùó ¿À·¡µÈ ¼úÁýÀ» ±¸³»½Ä´çÀ¸·Î º¯½Å
|
¿À·£ ½Ã°£ µ¿¾È ºñ¾îÀÖ´ø ÁöÇÏ½Ç ¼úÁýÀ» óÀ½ ºÃÀ»¶§¸¹Àº °ÆÁ¤ÀÌ ÀÖ¾ú½À´Ï´Ù.¼ö¸¹Àº °õÆÎÀÌ¿Í ´©¼ö·Î ÀÎÇÑ ½À±â°¡ °¡Àå Å« ¹®Á¦¿´½À´Ï´Ù.
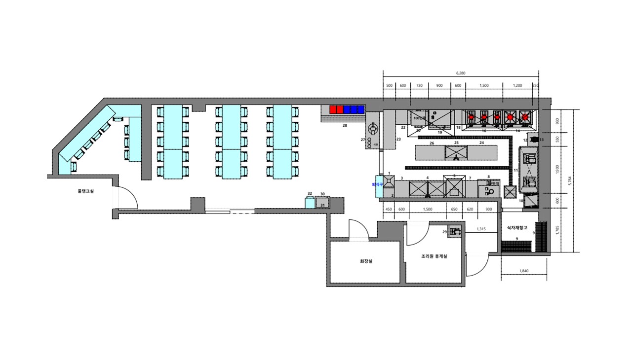
ÁÖ¹æÀ» ¼³°èÇÕ´Ï´Ù. ö°Å ÀÛ¾÷À» ½ÃÀÛÇÕ´Ï´Ù. ¸¹Àº ½Ã°£°ú ³ë·ÂÀÌ µé¾î°¬´ø ÀÛ¾÷ÀÌ¿´½À´Ï´Ù. ö°Å°¡ ³¡³ª°í ±âÃÊ °ø»ç¿¡ µé¾î°©´Ï´Ù.´©¼ö¸¦ Àâ´Â°Ô °¡Àå Å« ¹®Á¦¿´½À´Ï´Ù.
Á¶¸í, ¹Ù´Ú, º® ÀÎÅ׸®¾î¸¦ ÇÕ´Ï´Ù. ³Ê¹« ¿Ïº®Çϰí ÄèÀûÇÑ ½Ä»ç ȯ°æÀÌ ¸¸µé¾îÁ³½À´Ï´Ù.¸ÅÀÏ Á¡½É ÇູÇÑ ½Ä»ç½Ã°£À» º¸³»´Â ÈǸ¢ÇÑ °ø°£ÀÔ´Ï´Ù. °í°´ÀÇ Áñ°Å¿òÀ» À§ÇØ ÃÖ¼±ÀÇ ³ë·ÂÀ» ´ÙÇϰڽÀ´Ï´Ù.
|
|