|
Á¦¸ñ
|
â°í¸¦ ±¸³»½Ä´çÀ¸·Î
|
|
ÀÛ¼ºÀÚ
|
foodonhq
|
|
ÀÛ¼ºÀÏÀÚ
|
2023-01-21
|
|
°£·«¼³¸í
|
Á÷¿øº¹Áö¸¦ À§ÇØ ±¸³»½Ä´çÀ» ¸¸µé¾ú¾î¿ä!
|
¾È³çÇϼ¼¿ä Ǫµå¿ÂÀÔ´Ï´Ù.¿À´ÃÀº â°í¸¦ ±¸³»½Ä´çÀ¸·Î °ø»çÇÏ¿©Á÷¿øµéÀÇ º¹Áö¸¦ Å©°Ô Çâ»ó½ÃŲ »ç·Ê¸¦ ¼Ò°³ÇϰíÀÚ ÇÕ´Ï´Ù.¼ö½Ê³âÀü ¼Ò¼öÀÇ ÀοøÀ¸·Î â¾÷ÇϽŠ´ëÇ¥ÀÌ»ç´Ô,Ä¡¿ÇÑ °æÀï ¼Ó¿¡¼µµ ²ÙÁØÇÏ°Ô È¸»ç¸¦ ¼ºÀå ½ÃŰ¼Ì½À´Ï´Ù.ȸ»çÀÇ ¼ºÀ常ŠÁ÷¿øÀÌ ´Ã¾î°¡ »ç¿ÁÀ» ÀÌÀüÇÏÁö ¾ÊÀ¸¸é ¾ÈµÉ »óȲÀÌ µÇ¼Ì½À´Ï´Ù.»ç¿ÁÀ» Á÷Á¢ ±âȹÇÏ¿© °ÇÃà ÇϼÌÁö¸¸, ±¸³»½Ä´çÀÇ Çʿ伺À» ´À³¢Áö ¸øÇÏ¿´½À´Ï´Ù.¸î Â÷·Ê À̵¿±Þ½Ä ¾÷ü¸¦ ¹Ù²ã°¡¸ç ½Ä»çÇϼÌÁö¸¸, ¸¸Á·ÇÏÁö ¸øÇϼ̰í ȸ»çÀα٠ÇÑ½ÄºßÆä¸¦ ¾î·Æ°Ô °É¾î°¡´Â ¼ö°í¿¡µµ Á÷¿øµéÀº ½Ä»ç¿¡ ´ëÇÑ ºÒ¸¸ÀÌ ²÷ÀÌÁö ¾Ê¾Ò½À´Ï´Ù. °á±¹ â°í¸¦ ±¸³»½Ä´çÀ¸·Î ¸¸µé°íÀÚ °á½ÉÇϽŠ´ëÇ¥´ÔÀÌǪµå¿ÂÀ» ã¾ÆÁּ̽À´Ï´Ù. Ǫµå¿ÂÀÇ Á¦¾ÈÀ» ÈçÄèÈ÷ ¹Þ¾ÆÁֽŠ´ëÇ¥´Ô²² °¨»çµå¸®¸ç, ±× °ø»ç°úÁ¤À» ¼Ò°³ÇϰڽÀ´Ï´Ù.
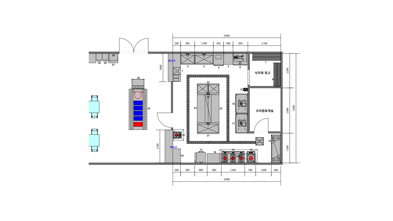
â°í Áß ½Ä´çÀ¸·Î ÀÌ¿ëÇÒ °ø°£À» È®Á¤ÇÏ¿´½À´Ï´Ù.
¸¹Àº ÀοøÀÌ ÇÑÁ¤µÈ °ø°£À» »ç¿ëÇØ¾ß Çϱ⠶§¹®¿¡°ø°£À» È¿À²ÀûÀ¸·Î »ç¿ëÇÏ´Â °ÍÀ» ¿ì¼± ¼øÀ§¿¡ µÎ°í Á¦¾È µå·È½À´Ï´Ù.ÇöÀç 100¸íÀÌ ³Ñ´Â ÀοøÀÌ ÀÌ¿ëÇÏÁö¸¸ ¾Æ¹« ¾î·Á¿ò ¾øÀÌ Àß ¿î¿µµÇ°í ÀÖ½À´Ï´Ù.

±âÃʰø»ç°¡ ½ÃÀ۵Ǿú½À´Ï´Ù. ¾à 12ÀÏÀÌ ¼Ò¿äµÇ¾ú½À´Ï´Ù.


ÁÖ¹æ°ø»ç°¡ ¸¶¹«¸® µÇ¾ú½À´Ï´Ù. ÃÑ 15ÀÏÀÌ ¼Ò¿äµÇ¾ú½À´Ï´Ù.ÀÌÁ¨ ÁÖ¹æ±â±¸¸¦ ¼³Ä¡Çϰí Ȧ¿¡ Å×À̺í°ú ÀÇÀÚ¸¦ ¼³Ä¡ÇÕ´Ï´Ù.
¿ÀÇÂÀÏÀÇ »çÁøÀÔ´Ï´Ù. ÇöÀç Ǫµå¿ÂÀÌ Á¦°øÇÏ´Â ½Ä»ç¿¡ Å©°Ô ¸¸Á·ÇϽô ¸ð½À¿¡ Å« °¨»çÀÇ ¸¶À½°ú µ¿½Ã¿¡ Ã¥ÀÓ°¨À» ´À³§´Ï´Ù.¾ÕÀ¸·Îµµ À§»ýÀûÀÌ°í ¸ÀÀÖ´Â ½Ä»ç Á¦°øÀ» À§ÇØ ÃÖ¼±ÀÇ ³ë·ÂÀ» ´ÙÇϰڽÀ´Ï´Ù.
|
|
|
|
|